本文
鳥取市民体育館再整備事業 工事経過
【令和5年2月】進捗状況
≪新築工事≫
外構工事:スロープ工事、植栽、舗装、グランド工事、ウッドデッキ工事
内部工事:床仕上げ工事、器具取付、クリーニング
建物の工事もほぼ終了し、仕上げと外構工事を残すのみとなりました。



メインアリーナ:仕上げ工事
2階メインエントランス:仕上げ工事
2階メインエントランス入口:仕上げ工事
2階バルコニー:仕上げ工事
外構:多目的広場人工芝設置、舗装工事
【令和5年1月】進捗状況
≪新築工事≫ 外構工事・内部床工事・扉つり込み作業
メインアリーナの床工事も着々と進み形が見えてきました。
1月月末の豪雪により工事の遅れが心配されますが、事業者の皆さんの協力いただき予定どおりの完成に向けて進めていきます。


メインアリーナ:床工事
サブアリーナ:床工事(ライン引き)
2階研修室:内装工事
2階トレーニングルーム:内装工事
工事進捗状況まとめ
市民体育館内の各施設における工事の進捗状況をまとめてみました。
【令和4年12月】進捗状況
≪新築工事≫ 外構工事、内部壁塗装、体育館床工事
メインアリーナの床面や内装も着々と進んでおります。
外装の状況


内装の状況
メインアリーナ:床工事
サブアリーナ:内装工事
エントランス:内装工事
トレーニングルーム:内装工事
【令和4年11月】進捗状況
≪新築工事≫ アリーナ等床仕上げ、各室壁仕上げ、外構工事
外壁の足場もほぼ撤去され体育館全体の外観が確認できるようになりました。施設名の看板も設置しいよいよ最終段階に差し掛かります。


内装工事等の状況
○メインアリーナ

〇外装に施設名称看板設置

【令和4年10月】進捗状況
≪新築工事≫ 外壁吹付工事、外部足場解体工事、内部ボード貼り工事
側面の外部足場も撤去され、周辺からも体育館の外観が確認できるようになりました。内装工事も順調に進んでいます。


内装工事の状況
○メインアリーナ

○トレーニングルーム

【令和4年9月】進捗状況
≪新築工事≫ 外壁塗装工事、内装工事
外装も概ね完成し、いよいよ内装工事に着手しています。写真下段は、メインアリーナと2階廊下の内装工事の現場です。


内装工事の状況
○メインアリーナ

○2階廊下

【令和4年8月】進捗状況
≪新築工事≫ アリーナ屋根工事、外壁塗装工事等



【令和4年7月】進捗状況
≪新築工事≫ 屋根鉄骨工事、外壁塗装工事等



【令和4年6月】進捗状況
≪新築工事≫ アリーナ屋根鉄骨工事・外部建具取付工事



【令和4年5月】進捗状況
≪新築工事≫ 3階・4階鉄筋・型枠コンクリート工事



【令和4年4月】進捗状況
≪新築工事≫ 3階・4階鉄筋・型枠コンクリート工事



【令和4年3月】進捗状況
≪新築工事≫ 2階・3階鉄筋・型枠コンクリート工事



【令和4年2月】進捗状況
≪新築工事≫ 1階・2階鉄筋・型枠・コンクリート工事



【令和4年1月】進捗状況
≪新築工事≫ 1階鉄筋・型枠・コンクリート工事



【令和3年12月】進捗状況
- 新築施設 1階鉄筋型枠工事



【令和3年11月】進捗状況
- 新築施設 基礎工事、1階鉄筋型枠工事



【令和3年10月】進捗状況
- 新築施設 基礎工事



【令和3年9月】進捗状況
- 新築施設 杭工事及び土工事



【令和3年8月】進捗状況
- 勤労青少年ホーム 解体工事
- 新築施設 杭工事



【令和3年7月】進捗状況
- 市民体育館 解体工事
- 新築施設 杭工事



【令和3年5月27日更新】完成予想図
<外観図>


<1階平面図>

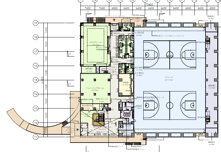
<2階平面図>

<エントランスホール>

<アリーナ>

<サブアリーナ>

<トレーニングルーム>



